• SIGNA™ Hero 3.0T Service Methods
  • 5852800-8EN Revision 1.0
  • Object ID: 00000018WIA3092FE20GYZ
  • Topic ID: id_13106584 Version: 4.2
  • Date: Jul 13, 2021 7:09:35 PM

ICC hose and valve inspection, coolant fill, and coolant leak check

Prerequisites

Personnel requirements
Required personsPreliminary requirementsProcedureFinalization
1-90 minutes-
Tools and test equipment
ItemQuantityPart numberManufacturer
5 gallon pail1--
Consumables
ItemQuantityPart numberManufacturer
Coolant As required (48 one-gallon containers shipped with the system)5174313-
Paper towels (white)1 roll--
Teflon (PTFE) tapeAs required--
Required conditions
ICC primary coolant circuit is running per Cryocooler (F-50) Setup.
Hose connections are secure.
Check valves are correctly oriented.
Power On Sequencing 1 completed (ISC main breaker on; cabinet, system cooling, ICN/ICE, and host sub breaker on; and other sub breaker off.
Table 1. Safety

About this task

This procedure provides instruction to properly:
  • Inspect the hoses and valves to ensure that they are correctly installed.
  • Fill the GCU and CCU tanks in the Integrated Cooling Cabinet (ICC) with a deionized water solution.
  • Check the valves for leaks after the pumps are activated and the fluid is circulating.
Topic ID: id_SL5472566-1199933

Hose and valve check

Procedure

Make sure the hose connections are secure and the valves are correctly oriented.
  1. Hoses at ISC top.
  2. Hoses at ICC top.
  3. Hoses at ICC GCU rear.
  4. Hoses at magnet rear.
  5. Valves are opened at magnet rear.
  6. Valves are opened at ISC water manifold.
  7. Valves are closed at draining ports of water manifold.
Figure 1. Hose and valve check
Topic ID: id_SL2282348-1199933

Coolant fill

About this task

Do this procedure for both CCU and GCU.

Procedure

  1. Prepare coolant bottles near ICC.
    Figure 2. One coolant gallon
    Note: The coolant fluid is dyed for easy detection of leaks. This also helps distinguish between a leak and any normal condensation on the hoses.
  2. Unscrew the cap from the top of the tank of CCU.
  3. Insert the tank funnel extension and funnel into the opening on top of the tank.
  4. Pour the coolant into the funnel to fill the tank until the coolant level reaches near the upper limit.
  5. (For ICC with vent valve with transparent hose Only) Vent the pump by using the existing venting valve with a transparent hose and a collecting vessel. Use the square section key to open/close the venting valve. Let the valve open as long as no more air (bubbles) appears.
    Note: Vent valve with transparent hose is removed from GCU/CCU after end of Q4, 2017 per VCP with engineering analysis. No operation is needed if not exist.
  6. Repeat Step 4 and Step 5 till the water level in tank seems to be stable and no more air bubbles appear.
    Figure 3. Filling coolant tank
  7. Screw the cap onto the top of the coolant tank.
  8. Repeat Step 2 through Step 7 for GCU.
Topic ID: id_SL13415204-1199933

Power on for GCU and CCU and coolant leak check

Procedure

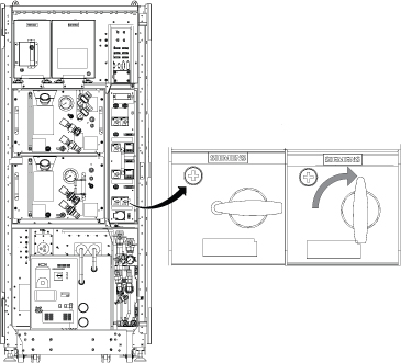
  1. Turn the control power (4Q1) on.
    Figure 4. Control power on
  2. Start the pump by turning the switch of CCU at control unit and observe the water level at the tank.
    Figure 5. Start the pump
    Note: If the red LED is lit at control box main breaker, it is because the ICC power cable phase is wrongly connected. Refer to ICC Power Phase Error for troubleshooting.
    • If the water level falls rapidly, stop operation of pump and check for leakages.
    • If the water level falls slowly, refill water during operation until the water level stays on the mark of the filling level indication.
  3. Make sure there is no leakage.
  4. If CCU switch is tripped, pour the coolant into the funnel to fill the tank until the coolant level reaches near the upper limit.
  5. Repeat Step 2 to Step 4 until CCU switch will not be tripped.
  6. Pour the coolant into the funnel to fill the tank until the coolant level is within green area.
  7. Remove air bubbles using the following steps.
    1. Turn off the switch of CCU at control unit.
    2. Vent the pump by using the existing venting valve with a transparent hose and a collecting vessel. Use the square section key to open/close the venting valve. Let the valve open as long as no more air (bubbles) appears.
    3. Turn on the switch of CCU at control unit.
  8. Repeat Step 2 to Step 7 for GCU.
  9. Turn on switches for patient blower and body coil blower on the ICC.

Finalization

  • When finished filling the tanks with coolant, place the funnel and tank funnel extension at the top opening of the ICC.
  • Keep any unused coolant for future use.
  • After the procedure is completed, view the hose connections closely to check for any leaks.
  • Check the hoses a second time after a few days (during installation) for any possible leaks.